液堿(氫氧化鈉)液位計以磁性浮子為測量元件,利用浮力原理和磁耦合技術將液位的變化線性地傳遞到現場指示器上,使指示器清晰地指示出液位的高度。
液位計可配置液位報警器和液位變送器。可實現遠距離液位上、下限燈光顯示和聲響報警。變送器可將液位的變化線性地轉換成4~20Ma.DC標準電流信號,與二次儀表配套可實現遠距離液位數/模顯示。
具有測量范圍大、雙色熒光顯示、夜明效果好、耐腐蝕性強、防燃防爆、安全可靠等特點。可適用于與工業及海洋傳播中各種容器內,水、工業污染、各種油類、液化氣、算酸、堿等液體介質的液位測量。
液位計類型
1、液位計按功能可分為:基本型(就地指示),帶報警器型和帶變送器型三種形式。
2、基本上按結構可分為:普通型、夾套型、低溫防霜型、高溫帶散熱片型、指示器下置型及指示器上置型等類型。
3、按防爆等級報警器和變送器可分為:隔爆型及本質安全型。
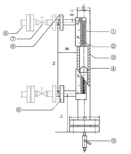
磁翻板液位計結構
(1)磁翻板液位計是以磁浮子為測量元件,磁鋼驅動翻柱顯示,無需能源。適用于低溫到高溫、真空到高壓等各種環境。是石油、化工等工業部門的理想液位測量產品。配置上、下限開關輸出,可實現遠距離報警、限位控制。配置變送器,可實現液位的遠距離指示、檢測與控制。
(2)根據在容器安裝位置的不同,提供側裝和頂裝兩種形式。
(3)根據工作介質不同,提供不銹鋼和ABS工程塑料兩種材質;其中ABS特別適用于酸、堿等腐蝕性介質。

液堿(氫氧化鈉)液位計工作原理
磁翻板液位計的測量筒與被測容器通過導管及法蘭連接是相通的,兩者中的氣相和液相是同步變化的。根據浮力和磁耦合原理,測量筒內的磁性浮子,隨被測液面的升高(降低),驅動測量筒外部顯示器上的雙色翻板翻轉。當液面上升時,磁性浮子驅動翻板旋轉180°,顯示紅色或綠色;當液面下降時,磁性浮子驅動翻板反向旋轉180°,顯示白色。紅色帶或綠色帶的高度就是被測液面的高度,實現了測量和顯示被測液(界)面位置的目的。
每個磁翻板為雙色軸向對稱結構,兩個磁翻柱間的間距為10mm,分別以白色和紅色(或綠色)來指示氣相部分和液相部分,紅色(或綠色)與白色交接處就是液相和氣相的分界處。該液位計既能測量液面,也能測量兩種不同密度介質的界面。

特點
● 結構非常簡單、堅固可靠、持久耐用、幾乎無需維護,可在戶外長期使用;
● 磁翻板與測量筒內的磁浮子及介質、磁性報警開關是互相隔離的;
● 工作壓力:真空~42MPa,密度*低可達0.459cm3;
● 工作溫度:-190~+425℃;
● 不受被測介質物理和化學狀態的影響。如:介質的導電率、介電常數、泡沫、壓力、溫度、蒸發、沸騰、氣泡等影響。**用于各種強弱腐蝕、易燃易爆、毒性、強放射性、攪動的、污濁的液面和界面測量;
● 可選配單刀單擲(SPST)、單刀雙擲(SPDT)型無源雙穩態磁性開關,實現高低液面、界面控制或報警。磁性開關數量不受限制;
● 可選配干簧管液位傳感器、磁致伸縮液位傳感器、電容式二線制液位傳感器,輸出4-20mADC(或帶HART協議)信號,實現遠距離集中測量與控制;
● 二線制液位傳感器可帶LED數碼顯示便于夜間觀測;
適用范圍
磁翻柱板液位計能**用于石油、化工、醫藥、食品、酒業等行業中各類貯液罐、貯槽、貯液池反應罐、發酵罐、液氨貯罐、氨分離器、鍋爐汽包、除氧器、硫水箱、回水箱、髙低壓加熱器、凝結器、蒸發器及其他壓力容器內與304、321、316L、0Cr18N9、304或0Cr18Ni9+PTFE 00Cr17N14Mo2、1Cr18N9Ti、PVC、PP等材質相容的介質液面、兩種不同介質界面測量與顯示。有多種安裝形式選擇,以適應不同場合環境的要求。
液堿(氫氧化鈉)液位計技術優勢:
磁浮式液位計表體均采用不銹鋼材質,浮子采用不銹鋼材質或高強度鈦合金材料,具有抗氧化性、耐高溫性、抗腐蝕性及無磁性等物理特性。適用石油化工、電力等領域各種特殊工況條件。當溫度大于120℃時,翻板式顯示器轉子采用陶瓷材料,其具有強度高、耐高溫、耐腐蝕、耐老化等優點。保證了液位計在高溫、腐蝕等工況下長期、穩定、可靠的運行。
對于草原、沙漠及沿海地區等工作環境條件下,應用真空式顯示器,該型顯示器將轉子密封在石英玻璃管中,并用特殊工藝將其內部抽成真空,隔離空氣,具有防腐蝕、沙塵、海風、雨淋等特點。
磁浮式液位計具有多種功能可供選擇,適用范圍十分**,用戶可根據現場工況的需求選擇相應配置功能的磁浮式液位計。

防霜功能
適用于測量0℃以下的液體液位。低溫液體常在液位計表面結霜或者結冰,從而導致無法觀看液面。在這種工況下,可采用具有防霜功能的磁浮式液位計,即在顯示器前加裝丙烯基保護窗,液位計整體加裝保溫材料,進而通過保護窗觀察到正確液位。
伴熱功能
適用于測量高粘度或低沸點液體液位。伴熱功能即在磁浮式液位計表體上安裝夾套。對于高粘度易凝固液體,在夾套內通入蒸汽或高溫液體,使液室內與所測裝置內溫度相同,從而測得準確液位。對于低沸點易沸騰液體,在夾套內通入冷卻水以達到穩定液面的作用,進而保證測量液位的精度。
真空夾套功能
在磁浮液位計上安裝套管,選用具有較高防腐性能的不銹鋼材質,并采用特殊工藝將其內部抽為真空,從而使所測液體與外界環境隔絕,保冷、保溫效果明顯,特別適用于低溫隔冷,高溫隔熱等工況環境,并確保測量液位的精度。
耐腐功能
對于腐蝕性比較強的化工介質液位測量,可采用耐腐型磁浮式液位計,它整體采用一種耐腐樹脂材料制作而成。對不同的腐蝕性介質,選用不同的防腐材料,如玻璃鋼、PVC等,保證裝置可以安全可靠的使用。
遠傳(變送)功能
在磁浮液位計上配置遠傳變送器和指示器,用戶可在控制室內監測液位值,并且具有高低位報警和液位控制等功能。
型號 | 代碼 | 說明 |
XT-UHZ- | 磁翻板液位計 | |
液位計類別 | 1 | 翻板指示(就地顯示型) |
3 | 遠傳帶翻板 | |
| 液位計型號 | 0 | 基型 |
W | 保溫型 | |
D | 插入型 | |
J | 耐腐型 | |
S | 防霜型 | |
Z | 保溫耐腐型 | |
Y | 插入耐腐型 | |
| 報警控制 | 0 | 無報警 |
1 | 帶上限 | |
2 | 帶下限 | |
3 | 帶上下限 | |
| 浮子材質 | P | 不銹鋼 |
L | 防銹鋁 | |
T | 鈦 | |
S | PVC塑料 | |
F | 氟塑包裹 | |
| 主體材質 | P | 不銹鋼 |
L | 防銹鋁 | |
T | 鈦 | |
S | PVC塑料 | |
F | 氟塑管 | |
PF | 內襯四氟 | |
PP | 內襯丙烯 | |
PE | 內襯乙烯 | |
連接法蘭 | 見表一 | |
介質溫度 | 見表二 | |
實際使用壓力 | 見表三 | |
介質比重 | 要注明 | |
訂貨長度 | 要注明 | |
/B | 防爆型 |




